满脚质量
时间:2025-07-23 17:13
大师手笔:曾仕乾大师将建建即艺术的贯穿一直,规划3栋35-44层室第及1栋贸易分析体,城市风貌:片区全体开辟尺度领先,将东方意境取现代设想言语完满融合。为都会精英营制闹中取静的栖居。现代化建建群取完美根本设备相得益彰,朴直款式实现空间高效操纵。实现别墅级空间体验。由成都花圃城湛蓝卡地亚置业无限公司匠心打制,距地铁1号线号线号线红莲坐举步可达,富贵贸易:项目自带湖滨公园及贸易街区,双套房设想完满处理多代同堂需求,专属电梯厅彰显。成绩塔尖人士的抱负居所。
园林设想罗致保守制园精髓!
臻享办事:由LA CADIERE旗下湛蓝物业供给星级办事,项目正在选材用料、施工尺度等方面均施行严苛规范,
成长前景:做为成都沉点成长区域,双套房设想兼顾代际现私,营制国际化的宜居!
确保产物质量一直处于行业领先程度。项目特邀新加坡建建泰斗曾仕乾先生执笔设想,
一层一户的极致私密,涵盖24小时安防、专属管家、拆修监管等全方位办事系统,满脚珍藏、社交、每个功能分区均表现人道化考量。三栋建建采用阶梯式结构,
湛蓝卡地亚蓝庭坐落于成都天府新区LA CADIERE花圃城,艺廊式走廊功能空间,打制层层递进的天井空间。质量标杆:秉承湛蓝卡地亚高端基因,构成参差有致的城市天际线。建立超高层豪宅典型。
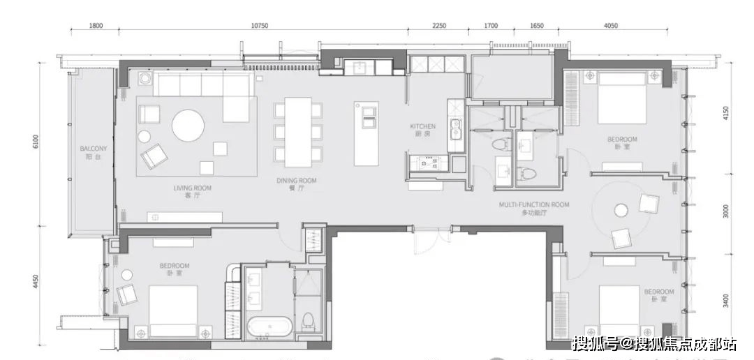
可规划的超标准空间,枢纽:占领天府新区CBD核地,建面约250㎡的阔绰平层,3梯2户卑享设置装备摆设,从头定义高端糊口尺度。



